Listing detail

New for rent

For rent: Grasweg, 1031 HX Amsterdam

€3,000 /mo
Type of residence Apartment, gallery flat, apartment
Liveable area 79 m²
Acceptance By 01 November 2025
Status New for rent

Note

General

Gorgeous upholstered 2 bedroom apartment (built in 2025 with A+++ label) has gorgeous parquet floors and floor heating. It is located on 6th floor with floor to ceiling windows and a balcony overlooking the IJ, Silodam and Pontsteiger, right next to distelweg-pontsteiger ferry.

This newly created apartment is on the 6th floor of a new building and has a west orientation, which guarantee a m... More info
  • Features

    All characteristics
    Type of residence Apartment, gallery flat, apartment
    Construction period 2025
    Status New for rent
    Offered since 16 October 2025
  • Location

Features

Offer
Reference number VH00405
Asking price €3,000 per month (upholstered, indexed)
Deposit €6,000
Upholstered Yes
Upholstered Upholstered
Status New for rent
Acceptance By 01 November 2025
Offered since 16 October 2025
Last updated 22 October 2025
Construction
Type of residence Apartment, gallery flat, apartment
Floor 6th floor
Type of construction Existing estate
Construction period 2025
Roof materials Bitumen
Rooftype Flat
Isolations Floor, Full, HR glazing, Insulated glazing, Roof, Wall
Surfaces and content
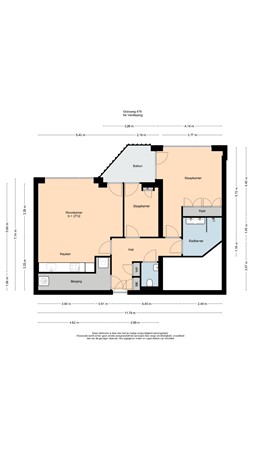
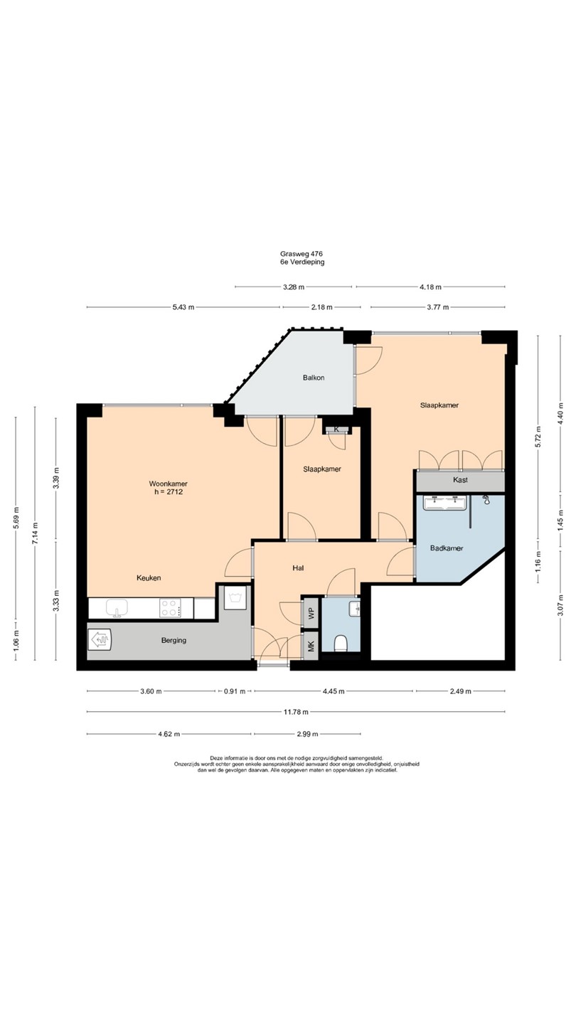
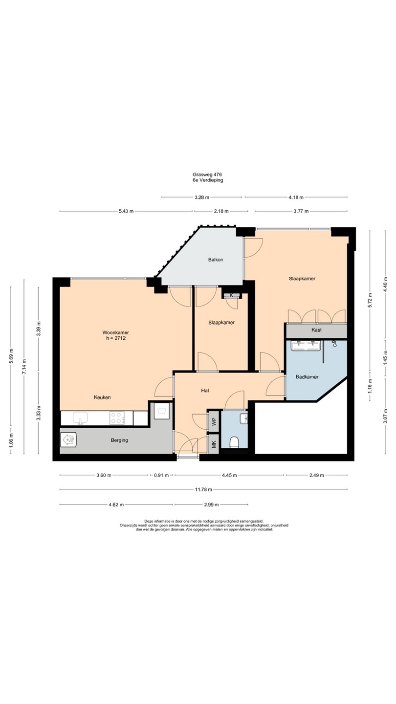
Floor Surface 79 m²
Living area 25 m²
Kitchen area 10 m²
Content 215 m³
External surface area storage rooms 6 m²
External surface area 6 m²
Balcony 6 m²
Layout
Number of floors 1
Number of rooms 3 (of which 2 bedrooms)
Number of bathrooms 1 (and 1 separate toilet)
Outdoors
Location At waterside, Near public transport, On a quiet street, On waterway, Unobstructed view
Energy consumption
Energy certificate A+++
Features
Water heating District heating
Heating District heating, Floor heating
Ventilation method Balnced ventilation
Bathroom facilities Shower, Sink, Underfloorheating, Walkin shower, Washbasin furniture
Has a balcony Yes
Has a storage room Yes

Description

Gorgeous upholstered 2 bedroom apartment (built in 2025 with A+++ label) has gorgeous parquet floors and floor heating. It is located on 6th floor with floor to ceiling windows and a balcony overlooking the IJ, Silodam and Pontsteiger, right next to distelweg-pontsteiger ferry.

This newly created apartment is on the 6th floor of a new building and has a west orientation, which guarantee a marvelous view of sunsets as well as grand views of the IJ and it shipping. Its modern ventilation systems and floor heating gives you a very pleasant living environment with a very efficient A+++ label, only 1 grade below being fully self-sufficient.

One enters the apartment in a small hallway that connects to all the rooms. There is a storage room, a separate toilet, a bathroom, 2 bedrooms and a living room with open plan kitchen. The storage room can be used as washroom (it has connections) as well as pantry, or even both. There is a separate additional storage in the basement of the building as well as a large communal bike parking..

The living has massive floor to ceiling windows giving great views, you can access the balcony from here as well as from both bedrooms. There is a modern open kitchen here with all the amenities desired for modern life.

The two bedrooms also have the same views and balcony access, one is intended as a master bedroom, the other is better used as office/guest room. Both rooms have bespoke built in cabinets.

The apartment is equipped with a spacious modern bathroom with walk in shower, double sink, floor heating and towel heater.

Interested?

If you’d like a viewing, please send a short introduction including:
- Desired start date
- Length of lease
- Viewing availability
- Source of income / employment details
- Expected duration of stay in Amsterdam
- Household details (who will live here)

Income requirement is three times rent and guarantors will not be accepted.

Floor plans

Close

Recently viewed